
LIXILメンバーズコンテスト2024において『ずっと住み続ける二人の空間』がグッドリビング賞を受賞いたしました。このような素晴らしい結果を得られたのは、まさに皆様の温かいご支援とお力添えのおかげであり、心から感謝の意を申し上げます。お一人お一人のご協力があってこその成功であり、そのおかげで私たちは大きな喜びと達成感に包まれています。この場をお借りして、皆様に深く御礼申し上げます。ウッディホームデザイン室は、今後もさらなる向上心と誠実な努力をもって、皆様の期待に応えられるよう励んでまいります。何かお力添えできることがあれば、どうぞお気軽にお知らせください。今後ともよろしくお願いいたします。
物件概要・リフォーム費用
| 建物種別 | 戸建住宅 |
|---|---|
| 担当施工店 | 千葉中央店 |
お客様のご要望とお困りの点
家が古くなってきたので、全面的にリフォーム。外壁は数年前に補修しているので室内のみに。
キッチンを対面にしたい。リビング壁の一部をそろえたい。部屋の真ん中にある支柱が悪目立ちするの
でおしゃれに目立たなくしたい。広いリビングを明るく快適な空間にしたい。
ご要望への対処とデザインコンセプト

もともとアパートだったところを2部屋つなげて自宅化した家なのでパイプスペースが家の中心部にあります。
そのためか壁面に凹凸がありました。また支柱がリビングにあり、それをいかlに隠すか…など検討しました。
キッチンもペニンシュラを置き対面しました。背面収納を大きなものにしてすべてその中に。
神棚とお仏壇は造作収納を作成し、畳のスペースも確保しました。
リフォームのポイント
内装建材
神棚の下にはお仏壇を置きます。引き出 し扉にしたので開けたままでも邪魔になりません。
インテリア格子
リビングにあった支柱をインテリア格子 を使って目隠しに。
キッチン・リシェルSI
扉カラーを明るめにし、ハンドル取っ手 で使いやすく。
キッチン・リシェルSI
たくさんの食器も2WAYクローゼット収 納で全て収まり使いやすく。
玄関
洗面
リフォームのビフォーアフター
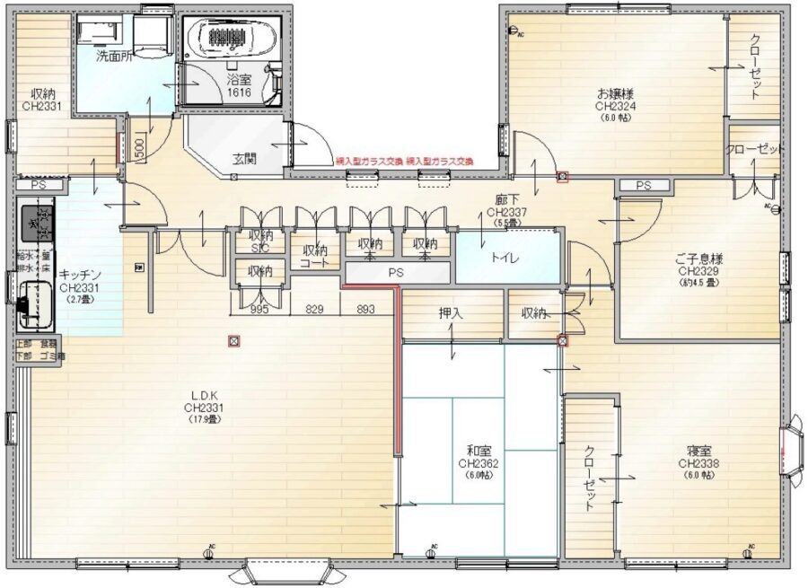
平面図

Before
![]()

After